NEW

パークホームズ湘南茅ヶ崎海岸 202号室

4,280万円

神奈川県茅ヶ崎市汐見台

東海道本線「辻堂」駅徒歩25分

東海道本線「茅ケ崎」駅徒歩47分

相模線「茅ケ崎」駅徒歩47分

価格
4,280万円
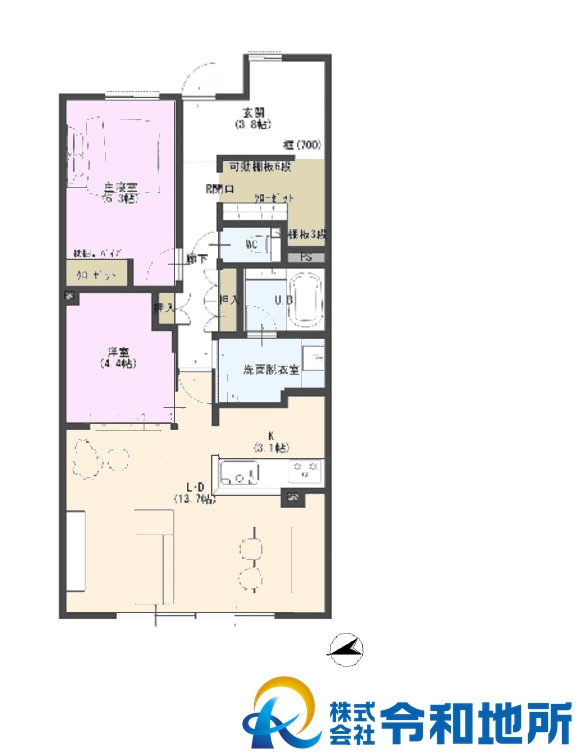
間取り
2LDK
向き
西
所在地
神奈川県茅ヶ崎市汐見台
交通

東海道本線辻堂」駅 徒歩25分

東海道本線茅ケ崎」駅 徒歩47分

相模線茅ケ崎」駅 徒歩47分

専有面積
72.41㎡
築年月
2004年10月(築21年)

物件の特徴

  • バストイレ別

  • カウンターキッチン

  • 独立洗面台

  • 浴室乾燥機

  • エレベーター

セールスポイント

▽海まで徒歩6分、湘南ライフを満喫出来ます☆彡
▽共有部分にはサーフボード置場やペットの足洗い場付!
▽リビング全体を見渡せる人気の対面式キッチン採用
▽大切なペットと一緒に暮らせます(細則有)
▽買物施設が徒歩圏内に点在し便利な立地
▽スーパーやドラッグストアが至近で生活に便利!
▽汐見台小学校まで徒歩2分とお子様の通学も安心

ポイント

小学校 徒歩10分以内 バルコニー シューズボックス スーパーが近い 2面採光

担当者のコメント

関 健士郎

お住まいへのこだわりは十人十色、当社ではどのお客様にも満足していただけるよう、数多くの不動産情報を取り扱っております。
また日々、様々な未公開物件情報を仕入れております。
まずはお客様のご希望条件をお聞かせください。
その他「購入時の返済額」や「ここの住所を知りたい」なども、お気軽にお問合せください。経験豊富なスタッフがお客様の疑問に丁寧にお答えいたします。
湘南エリアの不動産探しは地域密着の令和地所にお任せください♪

基本情報

管理費
11,570円
修繕積立金
20,420円
修繕積立基金
-
権利金
0万円
間取り / 詳細
2LDK
LD 13.7帖 1室/K 3.1帖 1室/洋室 6.3帖 1室/洋室 4.4帖 1室/0.0帖/0.0帖/0.0帖/0.0帖/0.0帖/0.0帖
向き
西
専有面積
72.41㎡
バルコニー面積
12.00㎡
その他面積
-
-
-
所在階 / 階建て
2階 / 5階建
建物構造
鉄筋コンクリート
築年月
2004年10月(築21年)
種別
中古マンション
駐車場 / 月額
空有 / 10,000円 (非課税) 10,000~/月
土地権利
所有権
土地
(敷金 / 保証金)
0万円 / 0万円
国土法届出要否
不要
接道状況
-
用途地域
第一種住居/準住居
地勢
平坦
都市計画
市街化区域
現況
空家
引渡し
相談
取引態様
仲介
棟総戸数
74戸
管理形態
管理会社に全部委託
管理会社 /
管理組合有無
三井不動産レジデンシャルサービス / 有
リフォーム
    2026年4月
    キッチン 浴室 トイレ 壁 床 全室 ◆洗面(シャワー付洗面化粧台交換) ◆防水パン交換 ◆給湯器 ◆玄関拡張 ◆クローゼット新設 ◆和室→洋室へ変更 ◆建具・スイッチ・コンセント交換 ◆室内クリーニング
その他条件
 細則有
取引条件の
有効期限
2026年04月30日

設備条件

設備条件
  • ペット相談 / ペット飼育可 / 閑静な住宅地 / リフォーム済 / 海が近い / フローリング / バルコニー / 都市ガス / 公営水道 / 公共下水 / エレベーター / 駐輪場 / バイク置場あり / コンロ2口以上 / カウンターキッチン / コンロ3口 / バス・トイレ別 / 追焚機能浴室 / 浴室乾燥機 / 洗面台 / 独立洗面台 / 床暖房 / 収納豊富
設備(その他)
    -

その他

物件番号
101901794
管理コード
13783
建築確認番号
-
情報更新日
2026年04月16日
次回更新予定日
2026年04月30日
取扱会社
  • 株式会社令和地所
  • 神奈川県茅ヶ崎市共恵1丁目1-9 
  • TEL:0120-080-868
  • 神奈川県知事 (2) 第30633号
  • 公益社団法人神奈川県宅地建物取引業協会
    公益社団法人首都圏不動産公正取引協議会
備考
▽海まで徒歩6分、湘南ライフを満喫出来ます☆彡
▽共有部分にはサーフボード置場やペットの足洗い場付!
▽リビング全体を見渡せる人気の対面式キッチン採用
▽大切なペットと一緒に暮らせます(細則有)
▽買物施設が徒歩圏内に点在し便利な立地
▽スーパーやドラッグストアが至近で生活に便利!
▽汐見台小学校まで徒歩2分とお子様の通学も安心

周辺施設

  • 汐見台キッズステージの画像

    保育園

    汐見台キッズステージ

    21m(1分)

  • 茅ヶ崎市立汐見台小学校の画像

    小学校

    茅ヶ崎市立汐見台小学校

    85m(2分)

  • セブンイレブン 茅ヶ崎緑が浜店の画像

    コンビニエンスストア

    セブンイレブン 茅ヶ崎緑が浜店

    150m(2分)

  • 緑が浜かもめ公園の画像

    公園

    緑が浜かもめ公園

    280m(4分)

  • 野村消化器内科の画像

    クリニック

    野村消化器内科

    450m(6分)

  • クリエイトS・D 茅ヶ崎常盤町店の画像

    ドラッグストア

    クリエイトS・D 茅ヶ崎常盤町店

    550m(7分)

  • マルエツ なぎさモール辻堂店の画像

    スーパー

    マルエツ なぎさモール辻堂店

    800m(10分)

  • 茅ヶ崎市立松浪中学校の画像

    中学校

    茅ヶ崎市立松浪中学校

    950m(12分)

  • はじめクリニックの画像

    総合病院

    はじめクリニック

    1700m(22分)

支払いシミュレーション

月々の支払額

※実際の金額と異なる場合があります。

購入希望物件価格
万円
頭金
万円
金利
%
返済額(ボーナス1回分)
万円
返済期間

※ボーナスは自動で年2回分で計算されます。

近隣の物件

  1. パレステージ茅ヶ崎Ⅱ

    茅ヶ崎市十間坂1丁目

    2LDK (44.20㎡)

    4,500万円

  2. 藤和ハイタウン湘南茅ヶ崎

    茅ヶ崎市矢畑

    3LDK (95.00㎡)

    5,180万円

  3. オクトス湘南茅ヶ崎ヴィスタヒル

    茅ヶ崎市甘沼

    3LDK (77.79㎡)

    3,590万円

  4. マイメゾン茅ヶ崎本村

    茅ヶ崎市本村5丁目

    3LDK (71.56㎡)

    3,880万円

よく見られている物件

  1. オクトス湘南茅ヶ崎グランドヒル

    茅ヶ崎市甘沼

    3LDK (67.71㎡)

    2,380万円

  2. グラン・コート湘南茅ヶ崎

    茅ヶ崎市本村4丁目

    2LDK+S(納戸) (75.10㎡)

    3,698万円

  3. グラン・コート湘南茅ヶ崎

    茅ヶ崎市本村4丁目

    3LDK (77.59㎡)

    4,380万円

  4. ライフコア茅ヶ崎

    茅ヶ崎市本宿町

    2LDK (78.24㎡)

    2,399万円

パークホームズ湘南茅ヶ崎海岸

パークホームズ湘南茅ヶ崎海岸

4,280万円

11,570円

2LDK(72.41㎡)

お気軽にお問い合わせください

無料お問い合わせ

株式会社令和地所

0120-080-868

09:00~19:00

(休:火・水曜日※祝日は営業しております。年末年始・夏季休業等有)